Description
La Nouvelliste est une jolie maison de plain-pied qui affiche un look urbain. Elle offre une grande superficie habitable et une disposition pratique.
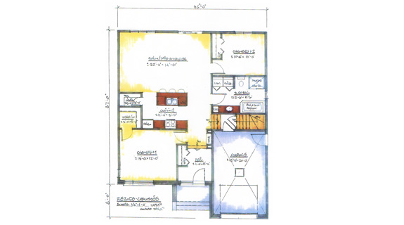
Le sous-sol offre une grande surface habitable supplémentaire. Vous avez la possibilité d'avoir une salle familiale, une chambre, une salle de bains, une salle de lavage et/ou une salle de lecture. Un garage simple complète le tout.
Grandeurs
- Superficie totale : 1224 pieds carrés
- RDC : 1224 pieds carrés
- Étage : non disponible
- Garage : 294 pieds carrés
- Salle familiale : non disponible
localisation
(*) Description à titre indicatif seulement. Les grandeurs et dimensions sont approximatives.
(*) Certains modèles peuvent ne pas être permis dans un projet selon la réglementation en vigueur.



