Description
Le Pinot Noir est une maison prestigieuse et se démarque par son élégance. Elle vous offre une bonne superficie habitable fournissant ainsi de nombreuses possiblités.
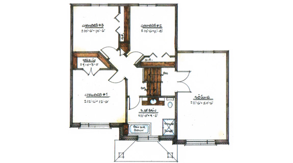
L'étage comprend deux ou trois chambres, selon le modèle qui vous convient le mieux, ainsi qu'une salle de bains.
Elle comprend également, en option, une grande salle de séjour. Un garage simple de bonne grandeur complète le tout.
Démarquez-vous avec cette maison!!!
Grandeurs
- Superficie totale : 1530 pieds carrés
(avec salle familiale, 1794 pieds carrés) - RDC : 765 pieds carrés
- Étage : 765 pieds carrés
- Garage : 264 pieds carrés
- Salle familiale : 264 pieds carrés (option)
localisation
(*) Description à titre indicatif seulement. Les grandeurs et dimensions sont approximatives.
(*) Certains modèles peuvent ne pas être permis dans un projet selon la réglementation en vigueur.




